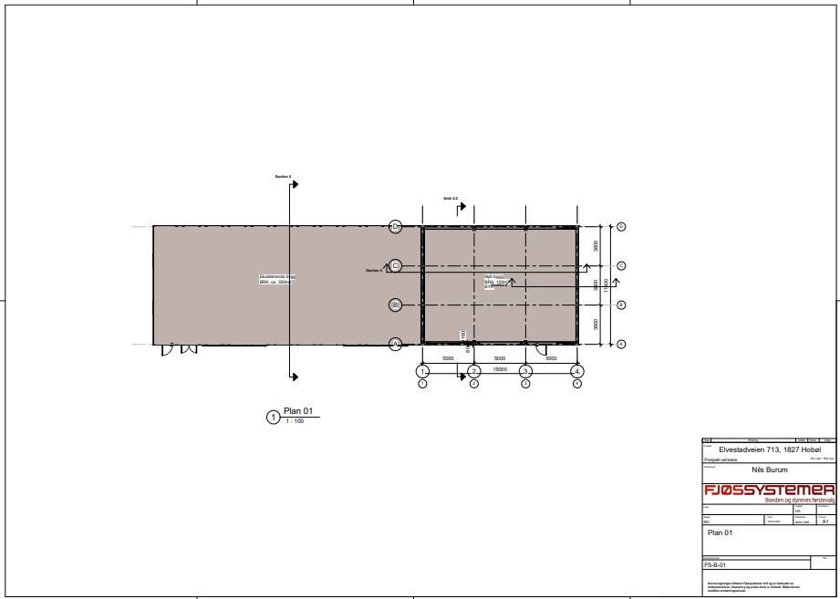
I Hobøl trengte Nils Burum mer lagerplass i et eksisterende bygg. Det er bygd med stålkonstruksjoner og sandwich elementer.
Bredde 11,4 x lengde 15 m. Det er to store porter med en mesanin i ene enden av bygget på 57 m². Stålkonstruksjon er klargjort for å kunne legge mesanin over hele bygget. Her har byggherre utført betongarbeid som egeninnsats.
Selger: Runar Granskogen, 458 04 000, runar@fjossystemer.no
Prosjektleder: Henning Amundsen, 906 78 477, henning@fjossystemer.no






